- Woonoppervlakte
- Circa 110 m²
- Perceeloppervlakte
- Circa 865 m²
- Bouwjaar
- Gebouwd in 1922
- Aantal kamers
- 3 kamers (2 slaapkamers)
Ben je op zoek naar jouw eerste eigen plekje? Dan is dit geschakelde eengezinswoning aan Gastelseweg 164 in Roosendaal perfect voor jou! Gebouwd in 1922, straalt dit huis karakter en charme uit.
Dit gezellige huis heeft een riante achtertuin van maar liefst waar je heerlijk kunt genieten van de buitenlucht. Het perceel beslaat 865,00 m2 in totaal, dus er is genoeg ruimte om je groene vingers te laten wapperen of om gezellige barbecues te organiseren. Bovendien heeft deze woning een energielabel A, wat betekent dat je ook nog eens energiezuinig woont.
Deze knusse woning bevindt zich in een gezellige buurt met alle nodige voorzieningen op loopafstand.
Laat je creativiteit de vrije loop en maak van dit huis jouw droomplek! Het is de ideale start voor jou als starter om een eigen thuis op te bouwen, waar jij je helemaal op je gemak voelt.
Heb je interesse in dit leuke startershuis? Neem dan snel contact met ons op voor een bezichtiging. Dit is jouw kans om in een gezellige buurt te wonen en een eigen stekje te creëren. Wacht niet te lang, want voor je het weet is dit huis verkocht!
Indeling
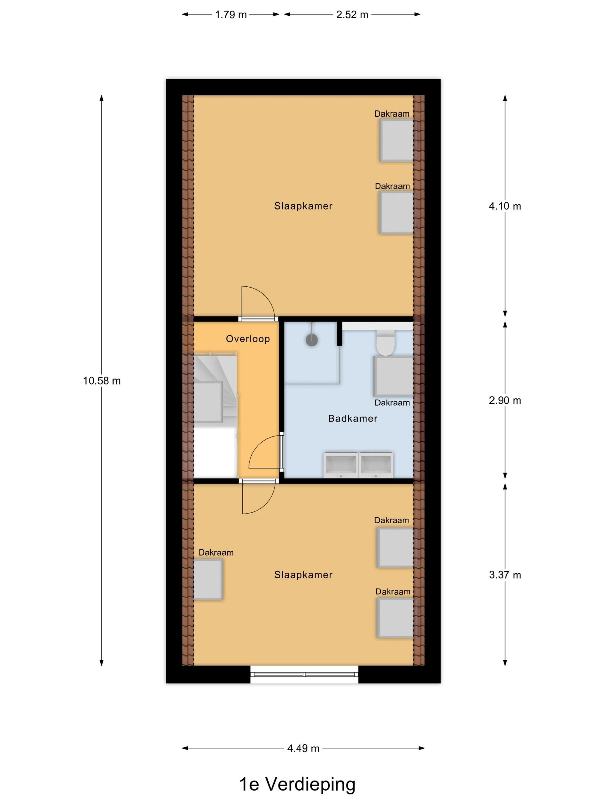
Via de voordeur komt u in de hal/entree. In de hal is de deur naar de woonkamer te vinden en ook de toegang tot de meterkast. De lichte woonkamer met gesloten keuken biedt genoeg plek voor een eetgedeelte en zitgedeelte. Door de grote ramen aangename daglichttoetreding. De gesloten keuken is geplaatst in 2018 en onder andere voorzien van een inductieplaat, vaatwasser, oven en Quooker. Via de bijkeuken is het toilet te bereiken en ook de deur naar de achtertuin. De woning is voorzien van kunststof kozijnen en wordt verwarmd door middel van airco's.
Op de verdieping zijn 2 ruime slaapkamers aanwezig die beide door airco's verwarmd worden. Ook is op de verdieping de badkamer aanwezig. De badkamer is voorzien van grote inloopdouche, dubbel wastafelmeubel, toilet en elektrische vloerverwarming.
De grote tuin leent zich perfect voor meerdere doeleinden. De oprit is onlangs verhard en de tuin geeft ruim voldoende plek om nog een mooie garage/bijgebouw te plaatsen.
Kenmerken
- Energielabel A
- Energiezuinig
- 2 slaapkamers
- Riant perceel
Overdracht
- Vraagprijs
- € 360.000 k.k.
- Status
- Verkocht
Bouw
- Object type
- Eengezinswoning, geschakelde woning
- Soort bouw
- Bestaande bouw
- Bouwjaar
- 1922
Oppervlakte en inhoud
- Woonoppervlakte
- 110 m²
- Perceeloppervlakte
- 865 m²
- Inhoud
- 393 m³
Indeling
- Aantal kamers
- 3 kamers (2 slaapkamers)
- Aantal woonlagen
- 2 woonlagen
Energie
- Energielabel
- A
- Energielabel registratie
- 03-02-2025
- Isolatie
- Dakisolatie en hr-glas
- Warm water
- Elektrische boiler
Buitenruimte
- Tuin
- Achtertuin
- Afmetingen achtertuin
- 760 m² (38,00 meter diep en 20,00 meter breed)
- ligging tuin
- Gelegen op het oosten
Energieverbruik in Roosendaal
Energielabel deze woning
Energielabel A
Publicatie energielabel: 03-02-2025
Stroomverbruik per jaar
(Gemiddelde tussenwoning in Roosendaal)
Gasverbruik per jaar
(Gemiddelde tussenwoning in Roosendaal)
* Cijfers zijn afkomstig van het CBS en bedoeld als indicatie en kunnen verschillen voor deze woning
Indicatie hypotheeklasten
Eigen inleg:
Spaargeld / overwaarde
Rente:
Laagste 10-jaars rente
Laagste 10-jaars rente
2,76% - Centraal Beheer Groen... - NHG
2,98% - Centraal Beheer Groen... - 80%
Laagste 20-jaars rente
3,19% - Centraal Beheer Groen... - NHG
3,31% - Centraal Beheer Groen... - 80%
Laagste 30-jaars rente
3,34% - Centraal Beheer Groen... - NHG
3,47% - Centraal Beheer Groen... - 80%
Hypotheek:
Bruto maandlasten: € 0 p/m
Netto maandlasten: € 0 p/m
Hoe berekenen we dit?
Het rentepercentage is gebaseerd op de laagste 10-jaars vaste rente voor één hypotheekdeel. De vermelde rente (2.76% met NHG) is gecontroleerd op 06-09-2025. Deze berekening is gebaseerd op een annuïteitenhypotheek die volledig wordt afgelost, waarbij de maandlasten gedurende de gehele looptijd gelijk blijven. De werkelijke rente en netto maandlasten kunnen variëren, afhankelijk van uw persoonlijke situatie en de hypotheekverstrekker. Raadpleeg een financieel adviseur voor een nauwkeurige berekening en advies. Aan deze berekening kunnen geen rechten worden ontleend; het dient enkel als indicatie.
Documentatie
Kadastrale kaart
Leefomgeving
Plattegronden PDF
WOZ waarderapport
BAG uittreksel
Energielabel
Lijst van zaken
Vragenlijst
Brochure
Bekijk onze website
Bezichtiging
Bod uitbrengen
Waardebepaling
Zoekopdracht
Alles downloaden
Zonnegrenzen bekijken
Op de kaart
Inwoners in Roosendaal
Cijfers voor postcodegebied 4705
- Totaal aantal inwoners
- 325 inwoners
- Mannen
- 54%
- Vrouwen
- 46%
Inwoners in Roosendaal
Cijfers voor postcodegebied 4705
- tot 15 jaar
- 9%
- 15 tot 25 jaar
- 14%
- 25 tot 35 jaar
- 17%
- 45 tot 65 jaar
- 37%
- 65 en ouder
- 22%
Huishoudens in Roosendaal
Cijfers voor postcodegebied 4705
- Eenpersoons zonder kinderen
- 22%
- Meerpersoons zonder kinderen
- 41%
- Huishoudens zonder kinderen
- 63%
Huishoudens in Roosendaal
Cijfers voor postcodegebied 4705
- Huishoudens met één kind
- 4%
- Huishoudens met meerdere kinderen
- 33%
- Huishoudens met kinderen
- 37%
Woningen in Roosendaal
Cijfers voor postcodegebied 4705
- Woningen voor 1945
- 43%
- Woningen tussen 1945 en 1965
- 11%
- Woningen tussen 1965 en 1975
- 14%
- Woningen tussen 1975 en 1985
- 7%
- Woningen tussen 1985 en 1995
- 11%
Woningen in Roosendaal
Cijfers voor postcodegebied 4705
- Woningen tussen 1995 en 2005
- 11%
- Woningen tussen 2005 en 2015
- 1%
- Woningen na 2015
- 1%
- Huurwoningen
- 10%
- Koopwoningen
- 90%
Overige in Roosendaal
Cijfers voor postcodegebied 4705
- Gemiddelde WOZ waarde
- € 318.000,-
- Personen onder de 65 met uitkering
- Niet beschikbaar
Overige in Roosendaal
Cijfers voor postcodegebied 4705
- Adressen per km²
- 589
- Stedelijkheid (schaal 1 op 5)
- 40%


De Huizenpraktijk
Indien u vragen heeft of u wilt een bezichtiging inplannen, dan kunt u gebruik maken van het formulier hiernaast. Er zal daarna op korte termijn contact met u worden opgenomen.
Contact opnemen
Het voordelige makelaarskantoor
Verkoop, aankoop en waardebepaling bij De Huizenpraktijk
De Huizenpraktijk in Zundert is dé makelaar met een unieke aanpak! Wij hanteren een vast, laag bedrag voor de verkoop of aankoop van je woning, dat eerlijk en realistisch is. Als onderdeel van Backx Assurantiën kunnen we je bovendien adviseren over je nieuwe hypotheek of verzekering.
Wij geloven in een open en eerlijke woningverkoop. Daarom rekenen we een eerlijk en realistisch bedrag dat je zelf mag bepalen na een succesvolle verkoop. Zo houd je geld over om je nieuwe huis in te richten, en zijn wij blij dat we je hebben kunnen helpen.
Wat de reden ook is om je huis te verkopen, je wilt zo snel mogelijk weten waar je aan toe bent. Daarom nemen wij je die zorgen uit handen tegen een laag tarief. Bij ons bepaal je de courtage zelf!
Is jouw huis verkocht dan bepaal jij op dat moment welk percentage je de makelaar gunt. Dit ligt tussen de 0,9% en de 1,6%*
Wat doen wij voor u?
- Woningopname met prijsbepaling in samenspraak;
- Opvragen kadastrale gegevens;
- Professionele foto’s, video, 360 graden foto's;
- Omschrijving maken;
- Inmeten volgens NEN 2580 en plattegronden maken;
- Woning op Funda, Jaap, Huislijn en Pararius;
- Fysieke glossy brochures voor iedere kijker;
- Eigen woningwebsite;
- Promotie via sociale media;
- Tuinbord plaatsen;
- Bezichtigingen coördineren en verzorgen;
- Prijsonderhandelingen met potentiële koper(s);
- Opstellen koopovereenkomst;
- Eindinspectie bij overdracht (meterstanden);
- Coördinatie overdracht notaris.

Nieuwste reviews
-
van Hovedreef 13
Precies wat je van een makelaar kan verwachten. Goede service en professionele begeleiding. Daarnaast ook de variabele courtage waar je zelf...
-
Korte Hei 11
Ons object was niet het makkelijkst om te verkopen. De mannen hebben hun uiterste best gedaan voor ons, met een positief resultaat. De aanpa...
-
Raadhuisstraat 63
Contact liep goed reageerde snel bij vragenGaf ook advies ivm de nieuwe woning en had bij vragen over de nieuwe woning ook advies waar we wa...